Mettre en pause
Lire le diaporama

EHPAD de Bourg-Argental

Bourg-Argental, Loire (42)

Ouverture sur la ville

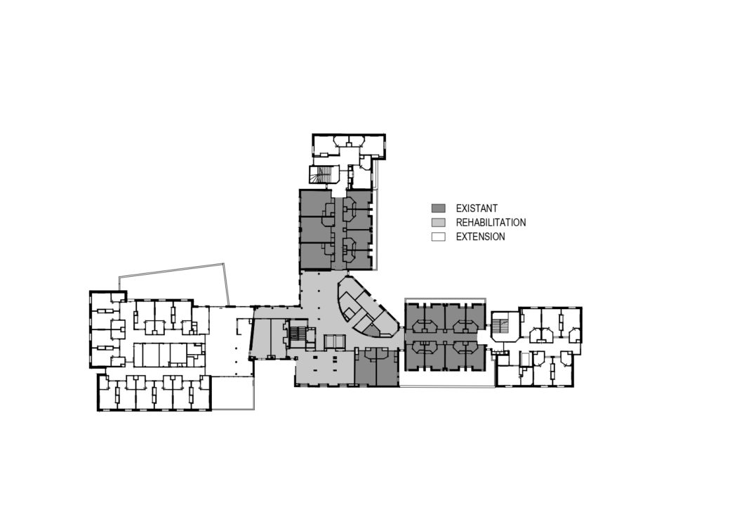
Situé à Bourg-Argental (42), l’EHPAD Les Jardins de la Déôme a bénéficié d’un programme de restructuration-extension livré en 2024, à l’issue d’un chantier en site occupé sans diminution de capacité. Ce projet a relevé du travail de couture pour articuler les nouveaux espaces à la structuration existante. Les parties neuves témoignent d’une intégration contemporaine au regard de l’architecture du bâtiment central, datant de 1995. À son bardage en bois répond un bardage métallique irisé, variant du vert au brun selon la lumière et le point de vue.

 

La façade d’entrée a été avancée. À chaque étage, l’espace ainsi élargi accueille les salons, avec vue panoramique sur le bourg. Des extensions sont venues agrandir les ailes Sud et Est. On y trouve les salles à manger, également tournées vers le centre de la commune. Ces extensions ont permis de gagner en confort en remplaçant les chambres doubles par des chambres individuelles. À la place de l’aile Nord, une unité de vie protégée (UVP) a été reconstruite. Elle dispose d’espaces extérieurs dédiés : une terrasse et un jardin clos en belvédère au-dessus du parvis.

 

Ce parvis piétonnier descend en pente douce depuis le parking de la rue du Docteur Moulin. Il mène à une placette qui dessert l’entrée principale. L’établissement est ainsi reconnecté à l’espace urbain par un cheminement végétalisé. Le jardin Sud a été clos et rendu accessible aux personnes à mobilité réduite par un nouvel ascenseur.

Programme
Restructuration-extension d’un EHPAD de 123 lits avec création de 36 chambres et d’une Unité de Vie Protégée de 13 lits.

Maître d’ouvrage
EHPAD de Bourg-Argental

Assitant à maître d’ouvrage
Atis Phalène

Maître d’œuvre
Genius Loci Architectes, mandataire ; Equinoxe (paysage) ; Icoba (structure) ; Strem (fluides) ; GBA&co (économie) ; B Ingenierie (VRD).

Superficie
1 849 m² SU neuf
925 m² SU réhab.

Coût de travaux
5 595 k€ HT

Mission
MB + EXE

Calendrier
2018 –  24

Perspectiviste
Frédéric Bonnamour